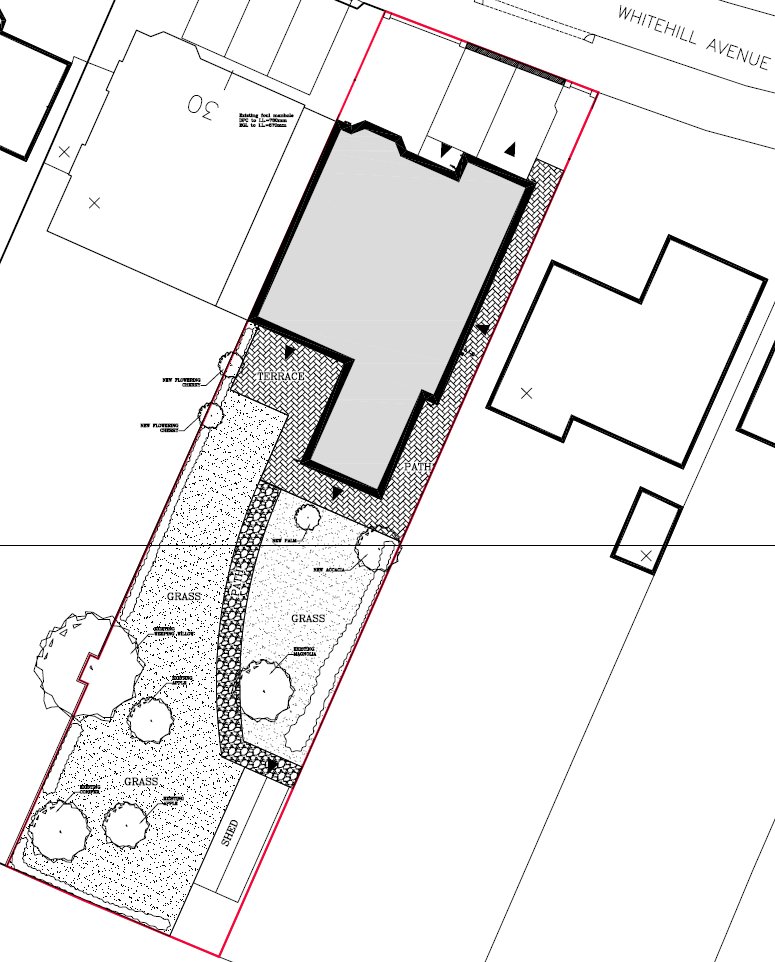
Site Layout